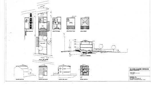
Villa_Burgod_Suresnes